| MLS # | 876396 |
| Impormasyon | sukat ng lupa: 0.17 akre |
| Buwis (taunan) | $805 |
| Tren (LIRR) | 3.3 milya tungong "Mastic Shirley" |
| 4.7 milya tungong "Bellport" | |
![]() |
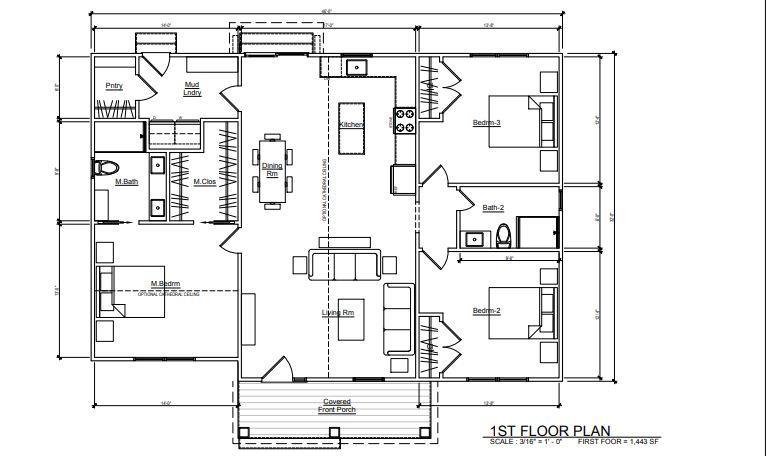
Huwag palampasin ang kamangha-manghang pagkakataong ito na buhayin ang iyong pangarap sa pamamagitan ng prime na bakanteng lote sa Mastic Beach. Ang property na ito ay handa na para simulan mo ang mga permit para sa isang 3-bedroom, 2-bath na ranch-style na tahanan, na nagbibigay-daan sa iyo upang i-customize ang iyong magiging tahanan. Nakatagong sa isang tahimik na residential na kapitbahayan na malapit sa mga lokal na marina, beach, parke, at paaralan, ang loteng ito ay nag-aalok ng perpektong pagsasama ng mapayapang pamumuhay at kaginhawahan. Kung ikaw ay isang tagabuo, mamumuhunan, o end-user, ito ang iyong pagkakataon na lumikha ng isang magandang tahanan sa lumalagong komunidad ng Long Island. Dalhin mo lang ang iyong pananaw at simulan ang pagtatayo!
Don’t miss this incredible opportunity to bring your vision to life with this prime vacant lot in Mastic Beach. This property is all ready for you to start the permits for a 3-bedroom, 2-bath ranch-style home, allowing you to customize your future residence.Nestled in a quiet, residential neighborhood close to local marinas, beaches, parks, and schools, this lot offers the perfect blend of peaceful living and convenience. Whether you're a builder, investor, or end-user, this is your chance to create a beautiful home in a growing Long Island community. Just bring your vision and start building! © 2025 OneKey™ MLS, LLC







