| ID # | RLS20062953 |
| Impormasyon | STUDIO , 1 kalahating banyo, Loob sq.ft.: 660 ft2, 61m2, 8 na Unit sa gusali, May 4 na palapag ang gusali DOM: 22 araw |
| Taon ng Konstruksyon | 1931 |
| Bus (MTA) | 0 minuto tungong bus B52 |
| 1 minuto tungong bus B43 | |
| 5 minuto tungong bus B15, B38 | |
| 6 minuto tungong bus B26 | |
| 8 minuto tungong bus B44 | |
| 9 minuto tungong bus B44+ | |
| 10 minuto tungong bus B25 | |
| Tren (LIRR) | 0.6 milya tungong "Nostrand Avenue" |
| 1.7 milya tungong "Atlantic Terminal" | |
![]() |
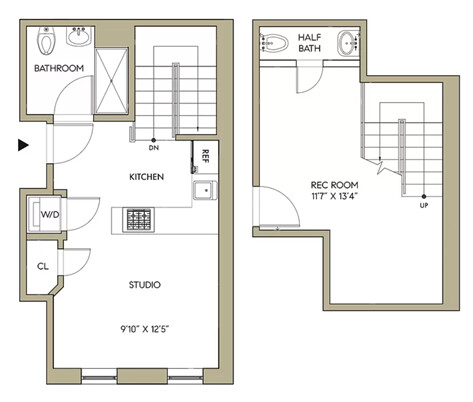
Tuklasin ang na-renovate na, sobrang spacious na duplex studio apartment na may 1.5 banyo sa isang modernong boutique condominium sa Bed-Stuy. Ang maaliwalas na bahay na ito ay nagtatampok ng mataas na 10+ talampakang kisame, malalaking bintana, recessed lighting, at oak hardwood na sahig, na nag-aalok ng bukas at marangyang pakiramdam sa buong lugar. Tamang-tama para sa mga premium na kaginhawahan kabilang ang in-unit na washer/dryer, dishwasher, at dalawang-zoned central AC/heat. Ang kusina ng chef ay may mataas na kalidad na mga pagtatapos na may quartz countertops, stainless steel na mga kasangkapan, at sleek cabinetry, at ang mga banyo ay nagtatampok ng spa-like na disenyo at makabagong fixtures. Ang gusali ay nag-aalok pa ng mga residente nito ng magkasanib na roof deck, landscaped na likod-bahay, karagdagang laundry, FIOS, at isang ButterflyMX remote doorman system para sa secure at maginhawang access. Matatagpuan malapit sa G, A & C subway, B52 bus at maraming Citi Bike stations, Herbert Von King Park at karagdagang mga berdeng puwang, at sa mga kainan, cafe, at lokal na tindahan ng kapitbahayan.
Available kaagad. Ang mga upfront na gastos ay may kasamang $20 rental application bawat aplikante, at kailangan sa pag-sign ng lease ang upa ng unang buwan at isang buwang security deposit.
Discover this renovated, extra-spacious duplex studio apartment with 1.5 baths in a modern Bed-Stuy boutique condominium. This airy home features soaring 10+ ft ceilings, oversized windows, recessed lighting, and oak hardwood floors, offering an open and luxurious feel throughout. Enjoy premium conveniences including an in-unit washer/dryer, dishwasher, and two-zoned central AC/heat. The chef's kitchen boasts high-end finishes with quartz countertops, stainless steel appliances, and sleek cabinetry, and the bathrooms feature spa-like design and contemporary fixtures. The building further offers its residents a shared roof deck, landscaped backyard, additional laundry, FIOS, and a ButterflyMX remote doorman system for secure, convenient access. Located nearby the G, A & C subways, the B52 bus and multiple Citi Bike stations, Herbert Von King Park and additional green spaces, and the neighborhood's dining, cafes, and local shops.
Available immediately. Upfront costs include a $20 rental application per applicant, and due at lease signing are first month's rent and a 1 month security deposit.
This information is not verified for authenticity or accuracy and is not guaranteed and may not reflect all real estate activity in the market. ©2025 The Real Estate Board of New York, Inc., All rights reserved.







