| ID # | RLS20065190 |
| Impormasyon | 1 kuwarto, 1 banyo, dishwasher na makina, Loob sq.ft.: 725 ft2, 67m2, 8 na Unit sa gusali, May 4 na palapag ang gusali DOM: 10 araw |
| Taon ng Konstruksyon | 2006 |
| Bus (MTA) | 1 minuto tungong bus B24 |
| 5 minuto tungong bus B43 | |
| 9 minuto tungong bus Q54, Q59 | |
| 10 minuto tungong bus B48 | |
| Subway | 7 minuto tungong L |
| Tren (LIRR) | 1.7 milya tungong "Hunterspoint Avenue" |
| 1.8 milya tungong "Long Island City" | |
![]() |
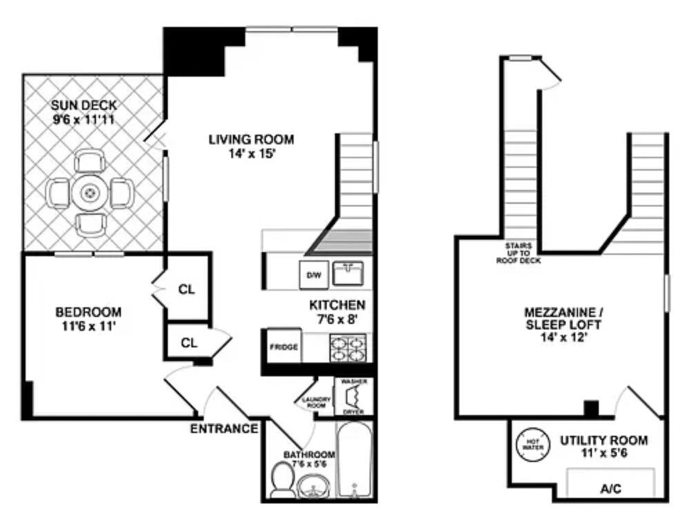
Ang kamangha-manghang tahanan #4A ay available na para sa renta sa puso ng Williamsburg sa 75 Kingsland Avenue. Sa pagpasok, ikinagagalak kang salubungin ng isang foyer na nagdadala sa maluwang na sala na may mataas na kisame, higit sa 15 talampakan, mga makabagong finish, at malalaking bintana na may napakaraming likas na liwanag mula sa timog at silangan. Naglalaman ito ng hardwood oak na sahig, sapat na imbakan, at isang sentral na sistema ng pag-init at pagpapalamig.
Ang bukas na kusina ay nilagyan ng kumpletong stainless steel na mga appliance, granite na mga countertop at cherry wood na cabinetry sa kabuuan. Mula sa sala, mayroon ka ring access sa mezzanine/sleeping loft sa pangalawang palapag, na madaling magagamit para sa pamumuhay o opisina sa bahay. Ang sala ay maayos na dumadaloy sa maluwang na pribadong terasa kung saan maaaring tamasahin ang nakakamanghang paglubog ng araw at tanawin ng lungsod. May washer/dryer na maginhawa sa yunit. Ang lokasyon ay perpekto sa Williamsburg na may madaling access sa L at G trains at nasa malapit ang hindi mabilang na mga restawran, pamilihan at cafe na inaalok ng lugar. Ang mga residente ay maaari ring tamasahin ang mga kamangha-manghang pampublikong parke malapit sa McGolrick at McCarren.
Available para sa Marso 1. Ang nangungupahan ay responsable para sa utilities. Welcome ang mga broker, CYOF. Ipinapakita lamang sa pamamagitan ng appointment na may 24 na oras na abiso. Ang kita at kredito ay kailangang beripikahin sa isang aplikasyon. Pasensya na, walang alagang hayop.
This remarkable residence #4A is now available for rent in the heart of Williamsburg at 75 Kingsland Avenue. As you enter you are welcomed with an entry foyer leading to the expansive living room boasting high ceilings throughout, over 15 ft, contemporary finishes, and oversized windows with tons of natural southern and eastern light. Hardwood oak flooring, ample storage, and a central heating and cooling system is featured throughout.
The open kitchen is equipped with a full stainless steel appliances, granite countertops and cherry wood cabinetry throughout. From the living room you also have access to a mezzanine/sleeping loft on the second level, which can easily be used for recreational living or home office. The living room flows seamlessly into the generously sized private terrace where one can enjoy the breathtaking sunsets and city views. A washer/dryer is conveniently in unit. The location is ideal in Williamsburg with easy access to the L and G trains and nearby countless restaurants, markets and cafes that the neighborhood has to offer. Residents can also enjoy the stunning public parks nearby McGolrick and McCarren.
Available for March 1st. Tenant is responsible for utilities. Brokers are welcome, CYOF. Showing by appointment only with 24-hour notice. Income and credit to be verified with an application. Sorry no pets.
This information is not verified for authenticity or accuracy and is not guaranteed and may not reflect all real estate activity in the market. ©2025 The Real Estate Board of New York, Inc., All rights reserved.







