| ID # | RLS20065480 |
| Impormasyon | 1 kuwarto, 1 banyo, Loob sq.ft.: 714 ft2, 66m2, 144 na Unit sa gusali, May 9 na palapag ang gusali DOM: 4 araw |
| Taon ng Konstruksyon | 1977 |
| Subway | 5 minuto tungong C, E, B, D, F, M |
| 6 minuto tungong R, W, A, 1, 6 | |
![]() |
MARAMING NAKATANGGAP NA APLIKASYON - HINDI NA NAG-AANYO
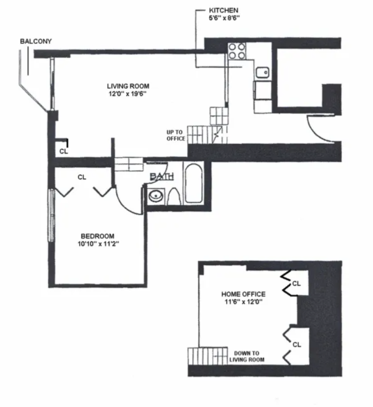
*NAPAKAGANDANG starter loft sa pinakamainam na lokasyon* Walang nakakainip na pare-parehong disenyo dito - ang expandable na 1-bedroom na ito ay jumbo size na may vaulted ceilings, isang hiwalay na floating home office na magagamit bilang guest room, at isang balkonahe. Ang mga finishing ay kinabibilangan ng kusina na may malinaw na Caesar stone counter tops at stainless steel appliances at isang bato-tiled na banyo na may cherry wood cabinets. Maraming mga aparador, lahat ay may custom built-ins para sa maximum na storage. Nasa mataas na palapag na may bukas na tanawin ng Empire State Building at kahanga-hangang sikat ng araw. Ang gusali ay may full-time doorman, renovation na lobby, bagong corridors, at laundry sa bawat palapag. Matatagpuan sa puso ng Greenwich Village, ilang hakbang mula sa Washington Square at SoHo! Pinapayagan ang mga alagang hayop. Ang mga bayarin para sa Tenant Application ay kinabibilangan ng $600 Application Fee. $125 Background check bawat tao. $250 Move in Fee. $250 Refundable Move in Deposit. $65 Digital Submission fee.
MULTIPLE APPS RECEIVED - NO LONGER SHOWING
*VERY COOL starter loft in the best location* No boring cookie cutter layout here - this expandable 1-bedroom is jumbo sized with vaulted ceilings, a separate floating home office usable as a guest room, and a balcony. Finishes include kitchen with crisp Caesar stone counter tops and stainless steel appliances and a stone-tiled bathroom with cherry wood cabinets. There are many closets, all fitted with custom built-ins for maximum storage. On a high floor with open views of the Empire State Building and wonderful sunlight. Building features full-time doorman, renovated lobby, new hallways, and laundry on each floor. Located in the heart of Greenwich Village, steps from Washington Square and SoHo! Pets allowed. Tenant Application Fees include $600 Application Fee. $125 Background check per person. $250 Move in Fee. $250 Refundable Move in Deposit. $65 Digital Submission fee.
This information is not verified for authenticity or accuracy and is not guaranteed and may not reflect all real estate activity in the market. ©2025 The Real Estate Board of New York, Inc., All rights reserved.







