| ID # | RLS20068692 |
| Impormasyon | 1 kuwarto, 1 banyo, 9 na Unit sa gusali, May 8 na palapag ang gusali DOM: 43 araw |
| Taon ng Konstruksyon | 1920 |
| Bayad sa Pagmantena | $2,186 |
| Subway | 3 minuto tungong 6 |
| 8 minuto tungong Q | |
![]() |
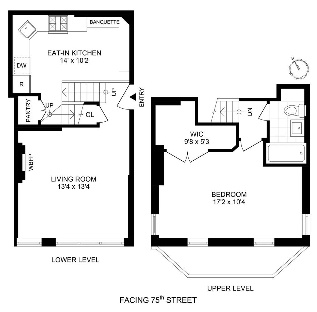
57 East 75th St, 1F, ay nag-aalok ng isang pambihirang direktang access lifestyle na karaniwang reserved para sa mga multi-milyong dolyar na townhouse. Mula sa iyong pintuan patungo sa sidewalk sa loob ng ilang segundo nang walang paghihintay sa elevator at walang maliit na usapan sa lobby. Ito ay purong, pribadong kaginhawahan sa puso ng Upper East Side. Ang gusali ay matatagpuan sa isang kakaibang block na may puno sa Upper East Side, ilang hakbang lamang mula sa mga luxury shop at restaurant sa Madison Avenue at dalawang block mula sa kayamanan ng New York City; Central Park. Ang natatanging harapan ng gusali ay nagbibigay pugay sa minimalistic na diskarte sa konstruksyon na ipinatupad ng Brutalist architectural style, subalit, kaaya-aya itong nakikipag-usap sa disenyo ng kapaligiran kasama ang Breuer building sa kanto ng East 75th Street at Madison Avenue, at ang Guggenheim na malapit.
Ang unang palapag ng triplex na ito ay nagtatampok ng isang sala na puno ng sikat ng araw mula sa apat na malalaking bintana na nakaharap sa timog. Ang perpektong sukat na silid na ito ay nag-aalok ng makabagong mga linya mula sa bi-level ceilings at pulang oak na sahig na kahoy na pinagsama sa tradisyunal na disenyo ng Italian marble wood burning fireplace.
Ang espasyo ng kusina sa ikalawang palapag ay madaling makakayang tumanggap ng dalawang culinary enthusiasts na nagsasagawa ng paghahanda at pagluluto nang magkatabi. Ang cream-colored cabinetry, marble countertops at mga high-end appliances, kabilang ang isang Wolf gas stove, ay nag-uudyok ng mga lutong bahay. Mayroon ding palaging pinahahalagahang built-in pantry para sa karagdagang imbakan. Katabi ng kusina, ay mas mahusay na ilarawan bilang isang flex space. Ang dalawang malalaking banquettes ay nakapahilig sa espasyo na nag-aalok ng isang cozy reading nook o gathering space para sa anim. Ang pagtataas ng mesa mula sa taas ng coffee table patungo sa 29 pulgada, na madaling makakamit sa pamamagitan ng hydraulics, ang espasyo ay nagiging isang home office na may mga electronics at printer na nakatago sa kalapit na closet o isang dining space para sa higit sa anim na tao.
Ang ikatlong palapag ay may kasamang renovated bathroom, na nagpapakita ng minimalist na estilo na may mga high-end finishes at karagdagang espasyo para sa imbakan. Ang malawak na silid-tulugan ay puno ng sikat ng araw mula sa apat na bintana na nakaharap sa timog, silangan at kanluran. Isang tampok ang grand walk-in closet na may custom cabinetry. Para sa mamimili na pinahahalagahan ang kahusayan, accessibility, o ang kadalian ng isang mabilis na umaga na paglabas kasama ang aso, ito ang pinakamainam na santuwaryo sa UES.
Ang 57 East 75th Street ay isang self-managed co-op na may napakababang maintenance, libreng labahan sa basement, imbakan, video intercom system at isang part-time na super. Pinapayagan ng gusali ang pied-a-terre, mga alagang hayop, sublet, at 80% financing. Ang washer/dryer ay pinapayagan na may pag-apruba ng board.
Mayroong 1% flip tax.
57 East 75th St, 1F, offers a rare direct access lifestyle usually reserved for multi-million-dollar townhouses. Go from your front door to the sidewalk in seconds with no elevator wait and no lobby small talk. This is pure, private convenience in the heart of the Upper East Side. The building is located on a quintessential Upper East Side tree lined block, moments away from luxury shops and restaurants on Madison Avenue and two blocks from New York City's treasure; Central Park. The unique building facade offers a nod to the minimalist approach to construction presented by the Brutalist architectural style, yet, speaks beautifully with the design aesthetic of the neighborhood with the Breuer building on the corner of East 75th Street and Madison Avenue, and the Guggenheim nearby.
The first floor of this triplex presents a living room with an abundance of sunlight from four large scale south facing windows. This perfectly proportioned room offers contemporary lines from bi-level ceilings and red oak wooden floors juxtaposed with the traditional design of the Italian marble wood burning fireplace.
The second-floor kitchen space can easily accommodate two culinary enthusiasts prepping and cooking side-by-side. The cream-colored cabinetry, marble countertops and high-end appliances, including a Wolf gas stove, encourage home cooked meals. There is an always appreciated built-in pantry for extra storage. Adjacent to the kitchen, is best described as a flex space. Two large scale banquettes frame the space offering a cozy reading nook or gathering space for six. Raising the table from coffee table height to 29 inches, easily accomplished by hydraulics, the space is transformed into a home office with electronics and printer stored in nearby closet or a dining space for upwards of six people.
The third floor includes a renovated bathroom, showcasing a minimalist style with high-end finishes and extra storage space. The large-scale bedroom is saturated in sunshine from four windows facing south, east and west. A standout is the grand walk-in closet with custom cabinetry. For the buyer who values efficiency, accessibility, or the ease of a quick morning outing with the dog, this is the ultimate UES sanctuary.
57 East 75th Street is a self-managed co-op with very low maintenance, free laundry in the basement, storage, video intercom system and a part-time super. Building permits pied-a-terre, pets, sublet, and 80% financing. Washer/dryer is allowed with board approval.
There is a 1% flip tax.
This information is not verified for authenticity or accuracy and is not guaranteed and may not reflect all real estate activity in the market. © 2026 The Real Estate Board of New York, Inc., All rights reserved.







