| MLS # | 956664 |
| Impormasyon | 50X100 DOM: 1 araw |
| Buwis (taunan) | $8,147 |
| Tren (LIRR) | 1.9 milya tungong "Port Washington" |
| 2.5 milya tungong "Plandome" | |
![]() |
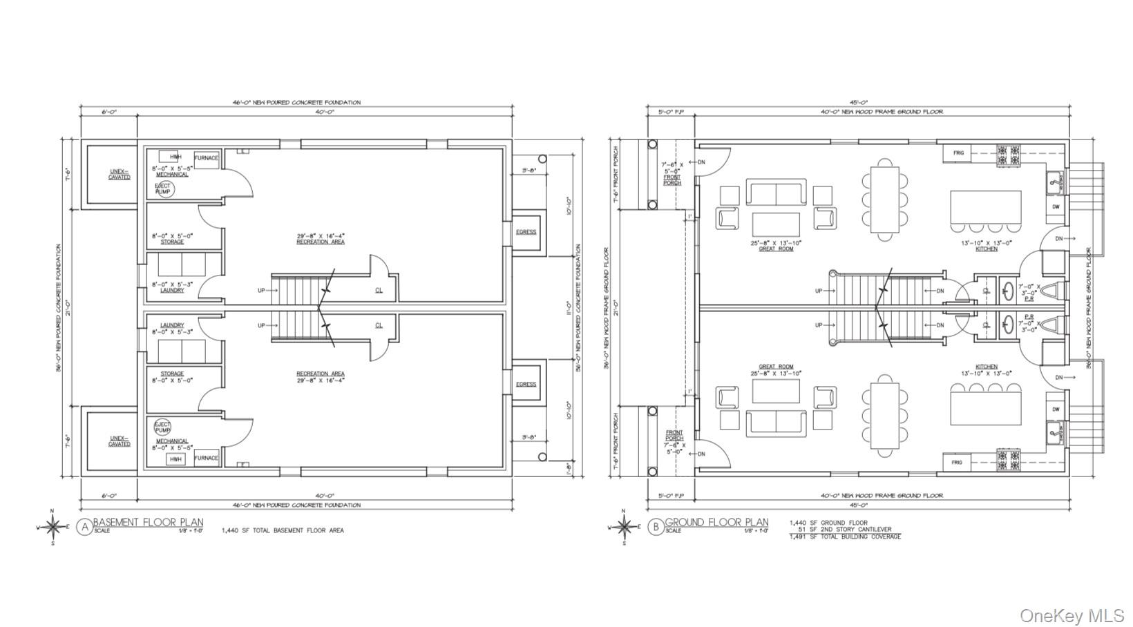
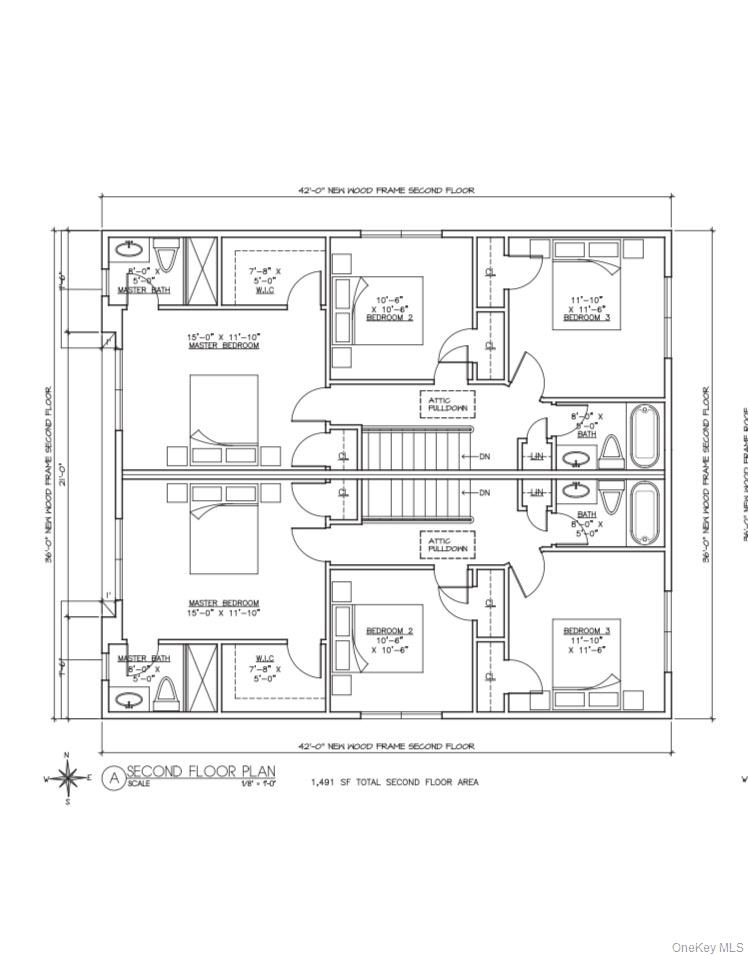
Ang ari-arian na ito ay naaprubahan para sa bagong konstruksyon ng bahay na may 2 pamilya. Magtatampok ito ng 6 na kuwarto, 4 na buong banyo at 2 kalahating banyo. Ang ari-arian na ito ay ibinebenta bilang halaga ng lupa na may mga planong naaprubahan ng BZA at Planning Board. Kailangang kumpletuhin ng mamimili ang natitirang mga hakbang tungo sa pagkumpleto o makakatulong ang nagbebenta at itatayo ang bahay para sa mamimili.
This property has been approved for a new construction 2 family home. It will feature 6 bedrooms 4 full and 2 half baths. This property is being sold as land value with plans approved by the BZA and Planning Board. Purchaser to complete the remaining steps to completion or seller can assist and build home for purchaser. © 2025 OneKey™ MLS, LLC







