| MLS # | 956565 |
| Impormasyon | 4 kuwarto, 3 banyo, dishwasher na makina, washer, dryer, garahe, sukat ng lupa: 0.19 akre, Loob sq.ft.: 1494 ft2, 139m2 DOM: 43 araw |
| Taon ng Konstruksyon | 1952 |
| Buwis (taunan) | $10,307 |
| Uri ng Fuel | Natural na Gas |
| Basement | kompletong basement |
| Tren (LIRR) | 0.6 milya tungong "Hicksville" |
| 2.2 milya tungong "Bethpage" | |
![]() |
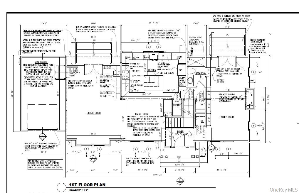
Malawak na lote na sukat 66 x 125 na may mga permit na na-aprubahan na para sa isang kamangha-manghang 3,400 sq ft na Kolonyal. May opsyon ang bumibili na tapusin ang na-aprubahang proyekto ng konstruksyon o muling isaalang-alang ang umiiral na bahay. Lahat ng mga pagbabago at plano ng gusali ay nasa lugar na, na nagpapahintulot sa susunod na may-ari na simulan ang konstruksyon kaagad—nang walang mga pagkaantala sa pagpaplano at pag-apruba.
Ito ay isang pambihirang pagkakataon para sa mga tagabuo, mamumuhunan, o mga end user na lumikha ng pangarap na tahanan mula sa simula, pinipili ang bawat tapos upang umangkop sa kanilang personal na estilo habang bumubuo ng makabuluhang equity. Ang mga na-aprubahang pasadyang plano ay maaari ring ayusin na may kaunting pagkaantala.
Ang ari-arian ay kasalukuyang mayroong bahay na estilo Cape na may 4 na silid-tulugan, sahig na kahoy, isang na-update na kusina, at isang buong basement—nag-aalok ng kakayahan na i-renovate, palawakin, o magtayo ng bago. Kung naghahanap ka ng malaking proyekto o nais lamang mapabuti ang umiiral na bahay sa isang pangunahing malawak na lote, ang mga posibilidad dito ay pambihira.
Oversized 66 x 125 lot with permits already approved for a stunning 3,400 sq ft Colonial. Buyer has the option to complete the approved construction project or reimagine the existing home. All variances and building plans are already in place, allowing the next owner to start building right away—without the delays of planning and approvals.
This is a rare opportunity for builders, investors, or end users to create a dream home from the ground up, selecting every finish to match their personal style while building significant equity. The approved custom plans can also be tweaked with minimal delays.
The property currently features a Cape-style home with 4 bedrooms, wood floors, an updated kitchen, and a full basement—offering the flexibility to renovate, expand, or build new. Whether you're looking for a major project or simply want to enhance an existing home on a prime oversized lot, the possibilities here are exceptional.
This information is not verified for authenticity or accuracy and is not guaranteed and may not reflect all real estate activity in the market. Listing courtesy of Weichert Realtors Performance © 2026







