Kooperatiba (co-op)
Adres: ‎1264 AMSTERDAM Avenue #3D
Zip Code: 10027
2 kuwarto, 1 banyo
分享到
$580,000
₱31,900,000
ID # RLS20070095
Filipino (Tagalog)
Are you the listing agent? Sign up to add your name and cell #
Douglas Elliman Real Estate Office: ‍212-891-7000

$580,000 - 1264 AMSTERDAM Avenue #3D, Morningside Heights, NY 10027|ID # RLS20070095

Property Description « Filipino (Tagalog) »

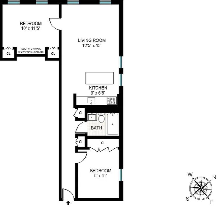
MABUHAY SA PUSO NG MORNINGSIDE HEIGHTS!

Magmadali at lumipat sa natatanging 2 silid-tulugan, 1 banyo na ito na nagtatampok ng mga pintong Pranses, mataas na kisame, maraming espasyo para sa mga aparador, isang bukas na bagong tapos na may bintana na kusina na may makinis na mga gamit na bakal, sapat na espasyo sa countertop dahil sa malawak na isla at maraming kabinet. Ang maluwang na apartment na ito ay nag-aalok din ng malaking, puting-puting banyo, sahig ng kahoy sa buong lugar pati na rin ang mga bintana sa bawat silid na may hilagang at kanlurang tanawin, na nagdadala ng likas na liwanag sa buong araw!

Ang kahanga-hangang apartment na ito ay matatagpuan sa isang magandang blokeng puno ng mga puno sa Amsterdam Avenue sa pagitan ng 123rd at La Salle Street kung saan maaaring tamasahin ng mga residente ang kaginhawaan ng isang tahimik na tirahan habang napakalapit sa 1/2/3/4/5/6/A/B/C/D na subway at M4, M11, M60, M100, M101, M104 at BX15 na mga bus.

Tamasahin ang pamumuhay sa puso ng Morningside Heights ng New York City habang napapalibutan ng pinakamagandang serbisyo at karangyaan na inaalok ng Manhattan tulad ng magagandang restawran, parke, paaralan, museo, pamimili, health clubs, sinehan at marami pa.

Ang 1264 Amsterdam Avenue ay isang self-managed na 6-na-palapag na co-op na nag-aalok sa mga residente ng superintendent, laundry room, LIBRENG imbakan ng bisikleta at isang napakalaking pribadong yunit ng imbakan.

Pinapayagan ang mga alagang hayop (hanggang 30 pounds para sa mga aso), tinatanggap ang mga guarantor at pagbibigay, 2% flip tax na binabayaran ng nagbebenta at pinapayagan ang subletting pagkatapos ng dalawang taon ng pagmamay-ari.

Ang mga pribadong pagpapakita ay maaaring i-schedule nang direkta sa listing broker 7 araw sa isang linggo.

ID #‎ RLS20070095
ImpormasyonNEVADA TOWERS

2 kuwarto, 1 banyo, washer, dryer, 22 na Unit sa gusali, May 6 na palapag ang gusali
DOM: 1 araw
Taon ng Konstruksyon1901
Bayad sa Pagmantena
$1,024
Subway
Subway
6 minuto tungong 1, A, B, C, D
Are you the listing agent? Sign up to add your name/photo/cell to your flyers. helpdesk@Samaki.com
房屋概況 Property Description « Filipino (Tagalog) »« ENGLISH »

MABUHAY SA PUSO NG MORNINGSIDE HEIGHTS!

Magmadali at lumipat sa natatanging 2 silid-tulugan, 1 banyo na ito na nagtatampok ng mga pintong Pranses, mataas na kisame, maraming espasyo para sa mga aparador, isang bukas na bagong tapos na may bintana na kusina na may makinis na mga gamit na bakal, sapat na espasyo sa countertop dahil sa malawak na isla at maraming kabinet. Ang maluwang na apartment na ito ay nag-aalok din ng malaking, puting-puting banyo, sahig ng kahoy sa buong lugar pati na rin ang mga bintana sa bawat silid na may hilagang at kanlurang tanawin, na nagdadala ng likas na liwanag sa buong araw!

Ang kahanga-hangang apartment na ito ay matatagpuan sa isang magandang blokeng puno ng mga puno sa Amsterdam Avenue sa pagitan ng 123rd at La Salle Street kung saan maaaring tamasahin ng mga residente ang kaginhawaan ng isang tahimik na tirahan habang napakalapit sa 1/2/3/4/5/6/A/B/C/D na subway at M4, M11, M60, M100, M101, M104 at BX15 na mga bus.

Tamasahin ang pamumuhay sa puso ng Morningside Heights ng New York City habang napapalibutan ng pinakamagandang serbisyo at karangyaan na inaalok ng Manhattan tulad ng magagandang restawran, parke, paaralan, museo, pamimili, health clubs, sinehan at marami pa.

Ang 1264 Amsterdam Avenue ay isang self-managed na 6-na-palapag na co-op na nag-aalok sa mga residente ng superintendent, laundry room, LIBRENG imbakan ng bisikleta at isang napakalaking pribadong yunit ng imbakan.

Pinapayagan ang mga alagang hayop (hanggang 30 pounds para sa mga aso), tinatanggap ang mga guarantor at pagbibigay, 2% flip tax na binabayaran ng nagbebenta at pinapayagan ang subletting pagkatapos ng dalawang taon ng pagmamay-ari.

Ang mga pribadong pagpapakita ay maaaring i-schedule nang direkta sa listing broker 7 araw sa isang linggo.

Read the English version or choose another language

This information is not verified for authenticity or accuracy and is not guaranteed and may not reflect all real estate activity in the market. ©2025 The Real Estate Board of New York, Inc., All rights reserved.

Courtesy of Douglas Elliman Real Estate

公司: ‍212-891-7000




分享 Share
$580,000
Kooperatiba (co-op)
ID # RLS20070095
‎1264 AMSTERDAM Avenue
New York City, NY 10027
2 kuwarto, 1 banyo


Listing Agent(s):‎
Are you the listing agent? Sign up to add your name and cell #‎
Office: ‍212-891-7000
请说您在SAMAKI.COM看此广告
请也给我ID # RLS20070095