| ID # | RLS20068134 |
| Impormasyon | 1 kuwarto, 2 banyo, washer, dryer, garahe, Loob sq.ft.: 1000 ft2, 93m2, 155 na Unit sa gusali, May 10 na palapag ang gusali DOM: 20 araw |
| Taon ng Konstruksyon | 1920 |
| Subway | 3 minuto tungong 1 |
| 6 minuto tungong C, E | |
| 7 minuto tungong A, B, D, F, M | |
![]() |
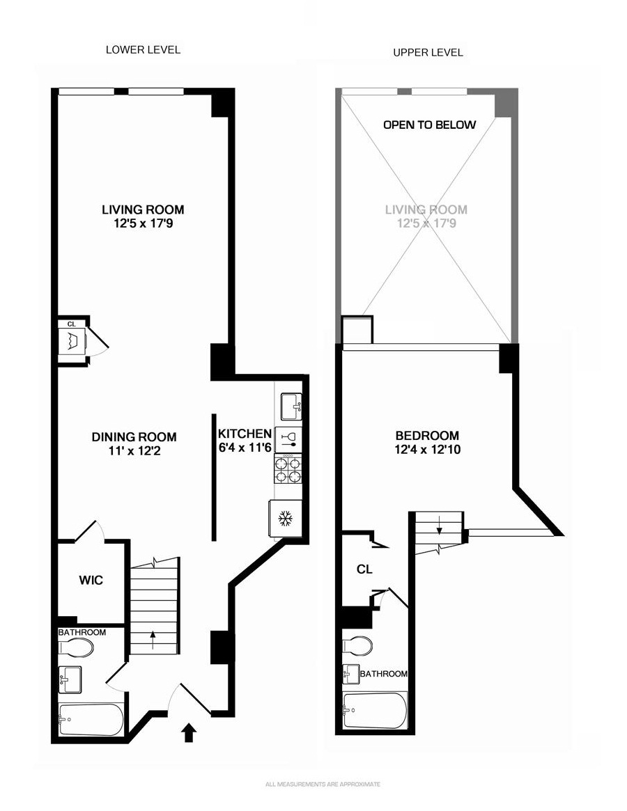
Nakasilaw na 1BR/2BA duplex loft sa Printing House Condominium na may mga beam, 15 talampakang double-height ceilings at oversized na bintana na nakaharap sa James Walker Park na may walang hadlang na tanawin ng lungsod. Ang 1000 square foot na tirahan na may washer/dryer ay may flexible na layout at maayos na nagbibigay-daan para sa parehong malaking at hiwalay na dining at living space. Madaling ma-access sa pamamagitan ng totoong hagdang-hagdang, ang full-height na lofted na silid-tulugan ay may tanawin ng malawak na living space sa ibaba at maaaring maglagay ng queen o king-sized na kama. Ang pangalawang buong banyo ay matatagpuan din sa pangalawang palapag, kasama ang mga hilera ng mahusay na espasyo sa aparador.
Ang Printing House ay isang full-service doorman building sa puso ng West Village. Kabilang sa mga amenity ng gusali ang mga concierge services, landscaped na pribadong mews, on-site valet, at central laundry room. Ang kagalang-galang na Printing House Equinox ay madaling ma-access sa pamamagitan ng gusali at nagtatampok ng rooftop pool. Malapit sa mga mataas na kinikilalang restawran at pampasaherong transportasyon, hindi mo ito dapat palampasin.
Tingnan mo mismo - ngayon na!
Sa pag-sign ng lease:
1st Buwan ng Rent + Security Deposit
Mga bayarin sa aplikasyon na dapat bayaran ng nangungupahan:
Background Report Fee - $125 bawat aplikante (karagdagang $75 para sa criminal check kung kinakailangan ng Board)
Condo Lease Application Fee - $550
Move In Deposit (Refundable) - $1,000
Move In Fee - $250
Read the English version or choose another language
This information is not verified for authenticity or accuracy and is not guaranteed and may not reflect all real estate activity in the market. © 2026 The Real Estate Board of New York, Inc., All rights reserved.






