| ID # | 959505 |
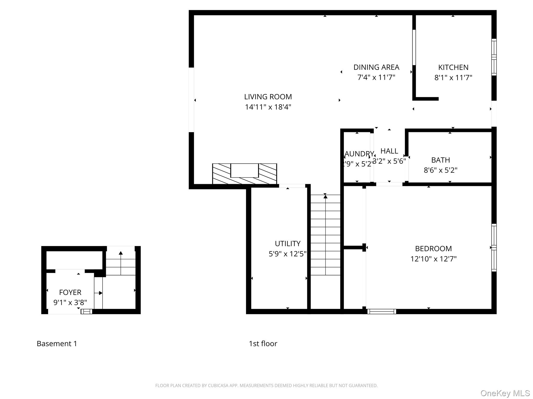
| Impormasyon | 1 kuwarto, 1 banyo, dishwasher na makina, washer, dryer, garahe, aircon, sukat ng lupa: 0.01 akre, Loob sq.ft.: 801 ft2, 74m2, May 2 na palapag ang gusali DOM: 18 araw |
| Taon ng Konstruksyon | 1989 |
| Bayad sa Pagmantena | $427 |
| Buwis (taunan) | $8,362 |
| Aircon | sentral na aircon |
![]() |
Maligayang pagdating sa maliwanag at maluwang na 1-bedroom end-unit condo sa kaakit-akit na Hunters Glen—naghihintay ang iyong perpektong bagong tahanan. Tangkilikin ang mga umaga na puno ng natural na liwanag sa galley kitchen, na kumpleto sa maginhawang pass-through patungo sa dining area. Mag-relax sa tabi ng komportableng fireplace sa living room, na nagbubukas sa isang pribadong deck para sa mga pagbabakasyon sa labas. Ang washer at dryer ay maginhawang matatagpuan sa hallway ng silid-tulugan, at ang silid-tulugan ay mayroong sapat na double closets. Ang matalinong imbakan ay may kasamang closet sa living room na naglalaman din ng hot water heater at isang utility closet malapit sa front door. Ang yunit na ito ay may kasamang labis na in-demand na 1-car garage. Ang Hunters Glen ay nag-aalok ng clubhouse, pool, tennis court, basketball court, playground at iba pa. Ang kaakit-akit na proyektong ito ay hindi mananatiling available nang matagal—kumilos nang mabilis!
Read the English version or choose another language
This information is not verified for authenticity or accuracy and is not guaranteed and may not reflect all real estate activity in the market. Listing courtesy of William Raveis-New York, LLC © 2026







