| ID # | 959208 |
| Uri ng Fuel | Koryente |
| Uri ng Pampainit | Koryente |
| Aircon | sentral na aircon |
![]() |
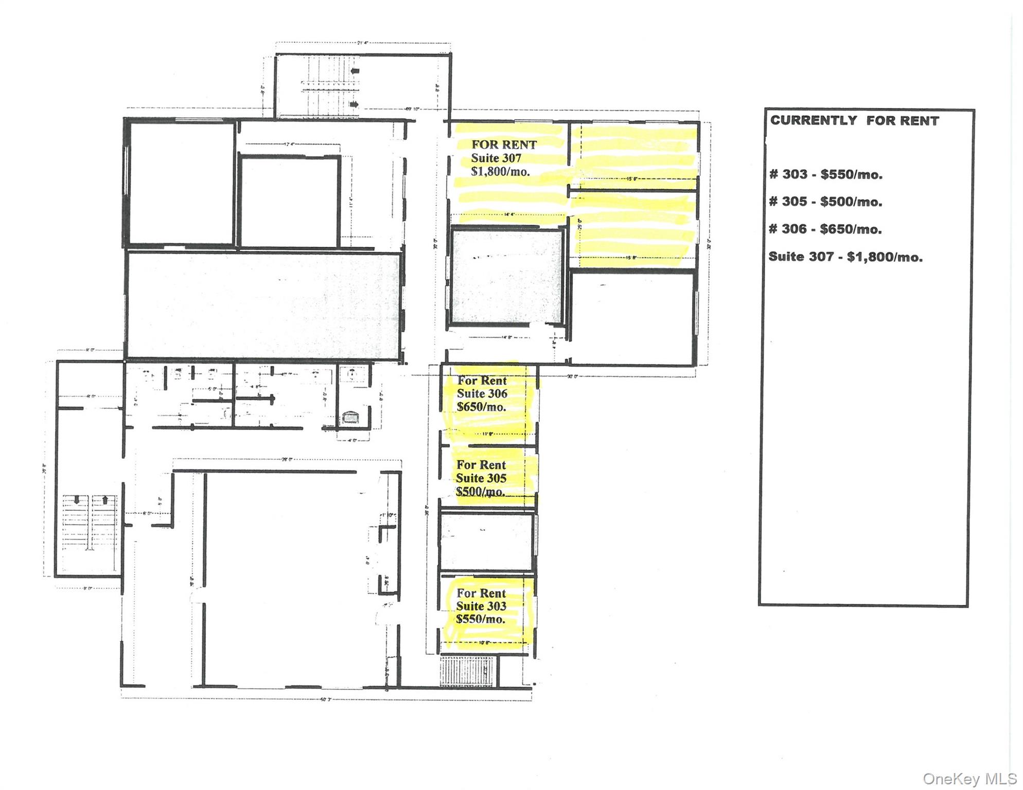
Isang opisina na nakaharap sa Main Street. Magandang visibility! Kamakailan lamang pininturahan, bagong sahig. Matatagpuan sa tuktok na palapag ng isang propesyonal na 3-palapag na gusali na may signage sa kalye at elevator. Maraming parking sa lugar. Angkop para sa karamihan ng uri ng mga negosyo sa opisina. Perpektong lokasyon sa silangang bahagi ng Village of Brewster. Ilang bloke lamang papuntang istasyon ng tren at isang minuto papuntang I-684 at I-84.
Read the English version or choose another language
This information is not verified for authenticity or accuracy and is not guaranteed and may not reflect all real estate activity in the market. Listing courtesy of VJF Realty of Brewster Inc © 2026







