| ID # | 960764 |
| Impormasyon | 3 kuwarto, 2 banyo, 1 kalahating banyo, dishwasher na makina, washer, dryer, sukat ng lupa: 0.05 akre, Loob sq.ft.: 1700 ft2, 158m2 DOM: 24 araw |
| Taon ng Konstruksyon | 1950 |
| Buwis (taunan) | $6,670 |
| Uri ng Fuel | Natural na Gas |
| Basement | kompletong basement |
![]() |
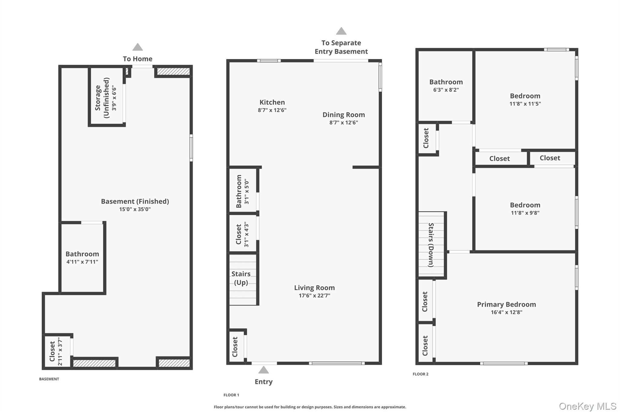
Matatagpuan sa kanais-nais na lugar ng Throggs Neck sa Bronx, ang 3-kwartong semi-attached na bahay na ito ay talagang handa na para tirahan. Sa pagpasok mo sa foyer, ikaw ay sasalubungin ng isang na-update at bukas na plano ng sahig na nagtatampok ng luxury vinyl flooring, recessed lighting, at crown molding. Ang mga bintana sa sala ay nagbibigay-daan para sa sapat na natural na liwanag na bumuhos sa buong bahay na ito. Tamasa ang na-update na eat-in kitchen na nilagyan ng granite counters, stainless-steel appliances, at sliding glass doors papunta sa maluwang na Trex deck. Tamasa ang BBQ at oras kasama ang mga kaibigan sa iyong nakasara na likod-bahay na may itaas na pool. Ang isang powder room at laundry area na may bagong washer/dryer combo unit ay kumpleto sa unang palapag. Sa itaas ay matatagpuan ang isang maluwang na pangunahing kwarto na may kanya-kanyang closet. 2 pang maluwang na kwarto na may sapat na imbakan ng closet. Na-update na banyo sa pasilyo sa ikalawang palapag. Higit pang espasyo ang matatagpuan sa tapos na mas mababang antas na may buong banyo at access sa likod-bahay. 2 pribadong parking spaces sa driveway. Madaling akses sa pampasaherong transportasyon at mga pangunahing kalsada. Ang lokasyon at mga update ay walang katulad.
Located in the desirable Throggs Neck neighborhood in the Bronx, this 3-bedroom semi-attached home is truly move-in ready. As you enter the foyer you are greeted by an updated and open floor plan featuring luxury vinyl flooring, recessed lighting, and crown molding. The windows in the living room allow for ample natural light to stream throughout this home. Enjoy the updated eat-in-kitchen appointed with granite counters, stainless-steel appliances, and sliding glass doors to the spacious Trex deck. Enjoy BBQ's and time with friends in your fenced in backyard with above ground pool. A powder room and laundry area with new washer/dryer combo unit complete the 1st floor. Upstairs you will find a spacious primary bedroom with his and her's closets. 2 more spacious bedrooms with ample closet storage. Updated 2nd floor hall bathroom. More space is found in the finished lower level with full bathroom and walk-out access to the backyard. 2 private parking spaces in the driveway. Easy access to public transportation and major highways. The location and updates are unmatched.
This information is not verified for authenticity or accuracy and is not guaranteed and may not reflect all real estate activity in the market. Listing courtesy of Howard Hanna Rand Realty © 2026






