| MLS # | 961509 |
| Impormasyon | 4 kuwarto, 2 banyo, dishwasher na makina, washer, garahe, aircon, sukat ng lupa: 0.6 akre, Loob sq.ft.: 1750 ft2, 163m2 DOM: 21 araw |
| Taon ng Konstruksyon | 2026 |
| Buwis (taunan) | $12,500 |
| Aircon | sentral na aircon |
| Basement | Hindi (Wala) |
| Tren (LIRR) | 1.3 milya tungong "Riverhead" |
| 7.5 milya tungong "Westhampton" | |
![]() |
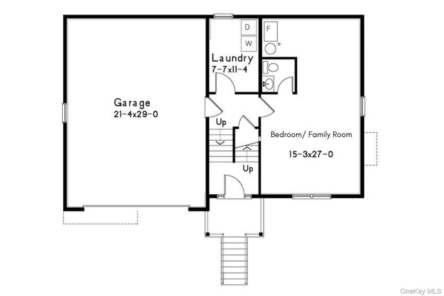
Ikinatatayo - Inaasahang Deliveries sa Taglagas 2026. Ipinapakilala ang 455 Middle Rd Lot 4, isang magandang disenyo na tahanan na may sukat na 1,750 square feet na pinagsasama ang klasikong arkitektura at modernong kaginhawaan. Ang panlabas ay nagtatampok ng multi-textured board at batten siding, malinaw na trim, at matitingkad na itim na shutters na nakatayo sa isang magaan na facade, na lumilikha ng nakakagaling na apela. Isang nakatakip na pinto na may mga haligi at nakalakip na dalawang sasakyan na garahe na may itim na nakapanel na pinto ay nagdadagdag ng estilo at funcionalidad. Sa loob, ang mga open concept na espasyo ng pamumuhay ay dumadaloy nang walang putol para sa maginhawang aliwan at pang-araw-araw na pamumuhay. Ang mga sahig na hardwood oak ay sumasaklaw sa pangunahing palapag, habang ang isang gas fireplace ay nagbibigay ng init at alindog sa lugar ng sala. Ang kusina ay nilagyan ng puting shaker cabinetry, mga bato na countertops, isang stainless-steel na kagamitan, isang farm sink, at isang malawak na sentrong isla na natural na nakakonekta sa mga espasyo ng kainan at pamumuhay. Ang pangunahing suite ay nag-aalok ng sapat na espasyo para sa aparador at isang pribadong banyo na may tile na shower enclosure at sahig ng tile. Dalawang karagdagang silid-tulugan ang nagbabahagi ng isang maayos na dinisenyong banyo sa pasilyo. Ang mas mababang antas ay may kasamang lugar ng laba na may cabinetry at mga hookup para sa washing machine at dryer, pati na rin ang ikaapat na silid-tulugan o flexible na silid-pamilya na may katabing powder room. Isang sapat na rear deck ang nagpapalawak ng espasyo ng pamumuhay sa labas. Ang tahanan ay maaaring maideliber din na may configuration para sa accessory dwelling unit para sa karagdagang potensyal na kita o multi-generational na pamumuhay, na nag-aalok ng pambihirang kakayahang umangkop at pangmatagalang halaga.
To be built- Expected Delivery Fall 2026. Introducing 455 Middle Rd Lot 4, a beautifully designed 1,750 square foot residence that pairs classic architecture with modern comfort. The exterior features multi textured board and batten siding, crisp trim, and bold black shutters set against a light facade, creating striking curb appeal. A covered columned entry and attached two car garage with black paneled doors add both style and functionality. Inside, open concept living spaces flow seamlessly for effortless entertainment and daily living. Hardwood oak floors run throughout the main level, while a gas fireplace anchors the living area with warmth and charm. The kitchen is appointed with white shaker cabinetry, stone countertops, a stainless-steel appliance package, a farm sink, and a generous center island that connects naturally to the dining and living spaces. The primary suite offers ample closet space and a private bath with a tile shower enclosure and tile flooring. Two additional bedrooms share a well-designed hall bath. The lower level includes a laundry area with cabinetry and washer and dryer hookups, plus a fourth bedroom or flexible family room with an adjacent powder room. An ample rear deck extends the living space outdoors. The home may also be delivered with an accessory dwelling unit configuration for added income potential or multi-generational living, offering exceptional flexibility and long-term value.
This information is not verified for authenticity or accuracy and is not guaranteed and may not reflect all real estate activity in the market. Listing courtesy of Douglas Elliman Real Estate © 2026







