| MLS # | 966168 |
| Impormasyon | 1 kuwarto, 1 banyo, dishwasher na makina, washer, dryer, sukat ng lupa: 0.25 akre, Loob sq.ft.: 725 ft2, 67m2, May 2 na palapag ang gusali DOM: 2 araw |
| Taon ng Konstruksyon | 1986 |
| Basement | Hindi (Wala) |
| Tren (LIRR) | 0.3 milya tungong "Ronkonkoma" |
| 4.6 milya tungong "Central Islip" | |
![]() |
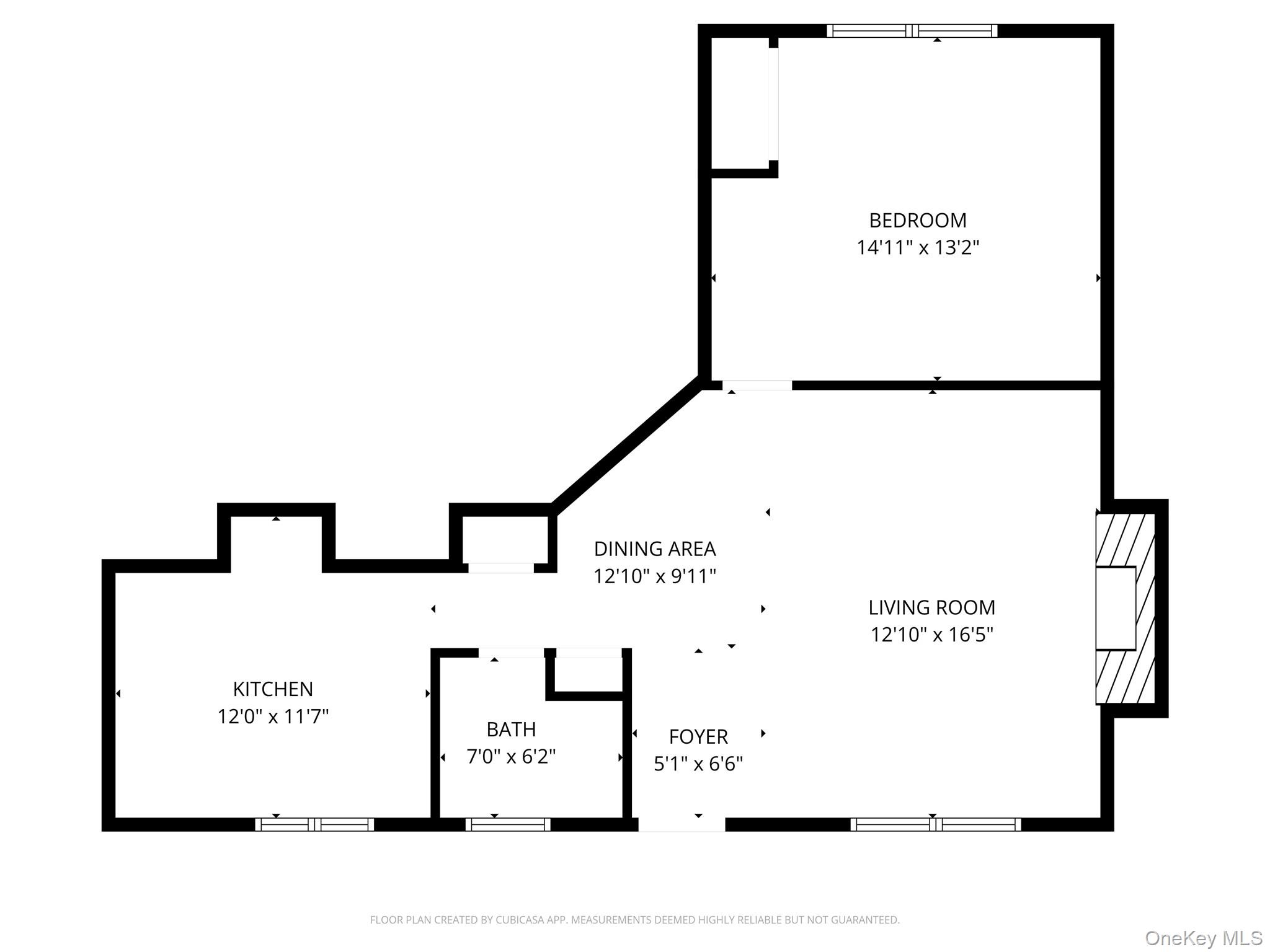
Maligayang pagdating sa maliwanag at maluwang na 725 sq. ft. na isang silid-tulugan na apartment na nag-aalok ng kaginhawaan at kaginhawahan sa isang pangunahing lokasyon. Ang tahanan ay may malaking sala na may kaakit-akit na fireplace na gumagamit ng kahoy, perpekto para sa mga masisiganang gabi. Ang oversized na kusina ay nilagyan ng mga granite countertops, stainless steel appliances, at isang ceiling fan, na nag-uugnay ng estilo at functionality.
Ang silid-tulugan ay may malaking aparador, habang may karagdagang imbakan mula sa coat closet at linen closet. Ang isang buong banyo, pribadong pasukan, at access sa washer at dryer ay nagdaragdag sa kaginhawaan ng maayos na espasyong ito.
Tamasahin ang benepisyo ng dalawang parking spot sa driveway at isang lokasyon na ilang minuto lamang mula sa Ronkonkoma LIRR station, pamimili, kainan, at mga pang-araw-araw na kaginhawaan.
Isang magandang pagkakataon para sa mga commuter o sinumang naghahanap ng komportable, maayos ang lokasyon na apartment na may kasamang lahat ng utility.
Read the English version or choose another language
This information is not verified for authenticity or accuracy and is not guaranteed and may not reflect all real estate activity in the market. Listing courtesy of EXP Realty © 2026







