Magrenta ng Bahay
Adres: ‎163 W 18TH Street #3C
Zip Code: 10011
2 kuwarto, 2 banyo, 1204 ft2
分享到
$10,500
₱578,000
ID # RLS20074521
Filipino (Tagalog)
Are you the listing agent? Sign up to add your name and cell #
Douglas Elliman Real Estate Office: ‍212-891-7000

$10,500 - 163 W 18TH Street #3C, Chelsea, NY 10011|ID # RLS20074521

Property Description « Filipino (Tagalog) »

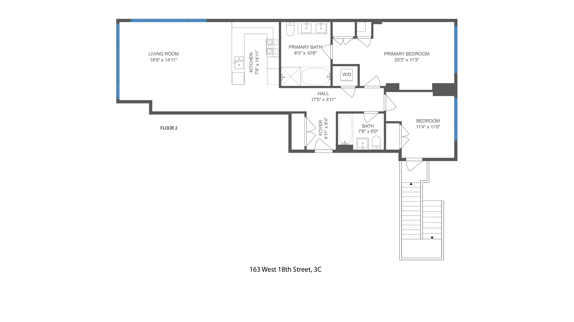
Ang kahanga-hangang tirahan na may dalawang silid-tulugan at dalawang banyo ay nagtatampok ng isang mainit na pader ng pagpasok na bumubukas sa isang maluwang na sulok ng sala na pinalilibutan ng dramatikong dingding ng mga bintana na nagpapasok ng liwanag ng araw at naglalahad ng maliwanag na tanawin ng lungsod. Disenyado para sa modernong pamumuhay at aliwan, ang bukas na kusina ay may mga stainless steel na gamit at sapat na espasyo sa countertop. Madali itong nag-uugnay sa dining alcove at maluwang na living area, na lumilikha ng perpektong tanawin para sa mga pagtitipon.

Isang tampok ng tahanan ay ang pribadong patio, isang tunay na panlabas na santuwaryo na sapat na laki upang tumanggap ng maraming puwesto - perpekto para sa al fresco dining at pagpapahinga. Ang pangunahing suite ay nag-aalok ng isang mapayapang kanlungan na may maluwang na espasyo para sa mga aparador at isang banyo na parang spa na may malalim na paliguan at dobleng lababo. Ang pangalawang silid-tulugan ay maayos ang sukat at maginhawang nakadikit sa pangalawang buong banyo.

Kabilang sa mga karagdagang tampok ang central air conditioning, hardwood floors, mga bintanang mula sahig hanggang kisame, at may in-unit washer/dryer. Ang Slate Condominium ay isang maliit na gusali na may 29 na tirahan sa puso ng Chelsea, ilang hakbang mula sa West Village, Meatpacking District, at Greenwich Village. Ang mga residente ay nasisiyahan sa 24-oras na serbisyo ng concierge at doorman, isang ganap na kagamitan na fitness center, parking garage sa site, at pet spa.

ID #‎ RLS20074521
ImpormasyonSlate Condominiums

2 kuwarto, 2 banyo, Loob sq.ft.: 1204 ft2, 112m2, 29 na Unit sa gusali, May 12 na palapag ang gusali
DOM: 1 araw
Taon ng Konstruksyon2007
Subway
Subway
1 minuto tungong 1
4 minuto tungong F, M
5 minuto tungong A, C, E, L, 2, 3
8 minuto tungong R, W
10 minuto tungong N, Q
Are you the listing agent? Sign up to add your name/photo/cell to your flyers. helpdesk@Samaki.com
房屋概況 Property Description « Filipino (Tagalog) »« ENGLISH »

Ang kahanga-hangang tirahan na may dalawang silid-tulugan at dalawang banyo ay nagtatampok ng isang mainit na pader ng pagpasok na bumubukas sa isang maluwang na sulok ng sala na pinalilibutan ng dramatikong dingding ng mga bintana na nagpapasok ng liwanag ng araw at naglalahad ng maliwanag na tanawin ng lungsod. Disenyado para sa modernong pamumuhay at aliwan, ang bukas na kusina ay may mga stainless steel na gamit at sapat na espasyo sa countertop. Madali itong nag-uugnay sa dining alcove at maluwang na living area, na lumilikha ng perpektong tanawin para sa mga pagtitipon.

Isang tampok ng tahanan ay ang pribadong patio, isang tunay na panlabas na santuwaryo na sapat na laki upang tumanggap ng maraming puwesto - perpekto para sa al fresco dining at pagpapahinga. Ang pangunahing suite ay nag-aalok ng isang mapayapang kanlungan na may maluwang na espasyo para sa mga aparador at isang banyo na parang spa na may malalim na paliguan at dobleng lababo. Ang pangalawang silid-tulugan ay maayos ang sukat at maginhawang nakadikit sa pangalawang buong banyo.

Kabilang sa mga karagdagang tampok ang central air conditioning, hardwood floors, mga bintanang mula sahig hanggang kisame, at may in-unit washer/dryer. Ang Slate Condominium ay isang maliit na gusali na may 29 na tirahan sa puso ng Chelsea, ilang hakbang mula sa West Village, Meatpacking District, at Greenwich Village. Ang mga residente ay nasisiyahan sa 24-oras na serbisyo ng concierge at doorman, isang ganap na kagamitan na fitness center, parking garage sa site, at pet spa.

Read the English version or choose another language

This information is not verified for authenticity or accuracy and is not guaranteed and may not reflect all real estate activity in the market. © 2026 The Real Estate Board of New York, Inc., All rights reserved.

Courtesy of Douglas Elliman Real Estate

公司: ‍212-891-7000




分享 Share
$10,500
Magrenta ng Bahay
ID # RLS20074521
‎163 W 18TH Street
New York City, NY 10011
2 kuwarto, 2 banyo, 1204 ft2


Listing Agent(s):‎
Are you the listing agent? Sign up to add your name and cell #‎
Office: ‍212-891-7000
请说您在SAMAKI.COM看此广告
请也给我ID # RLS20074521