| ID # | RLS20076149 |
| Impormasyon | 1 kuwarto, 1 banyo, 1 kalahating banyo, dishwasher na makina, 2 na Unit sa gusali, May 2 na palapag ang gusali DOM: 17 araw |
| Taon ng Konstruksyon | 1899 |
| Bus (MTA) | 1 minuto tungong bus B15 |
| 2 minuto tungong bus B38, B43 | |
| 3 minuto tungong bus B52 | |
| 9 minuto tungong bus B26, B54 | |
| 10 minuto tungong bus B46 | |
| Tren (LIRR) | 0.9 milya tungong "Nostrand Avenue" |
| 1.9 milya tungong "Atlantic Terminal" | |
![]() |
Isang Bihirang Duplex sa Hardin ng Tag-init | Kumpletong Muwebles | Hunyo 1 – Agosto 31
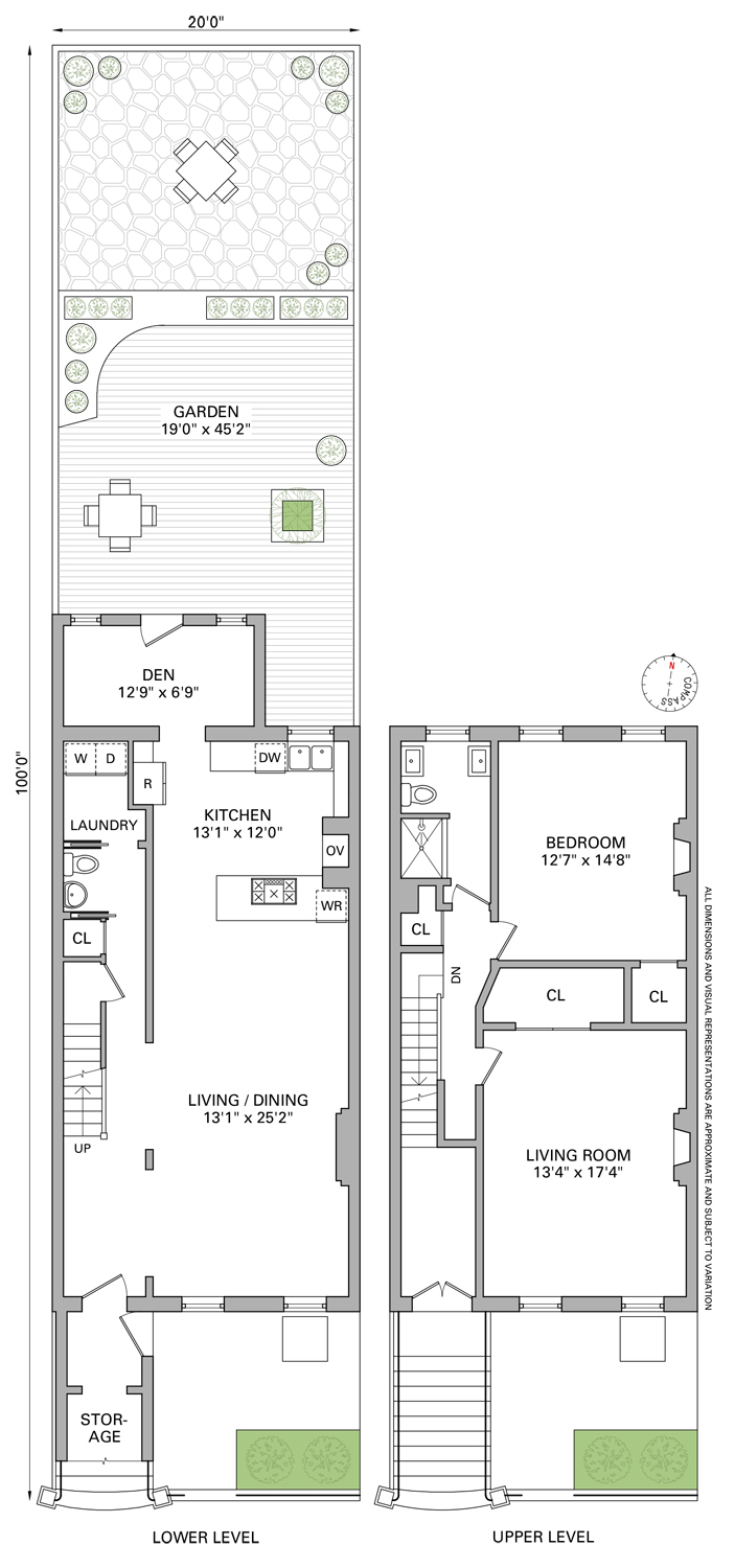
Nakatagong loob ng isang kaakit-akit na townhouse, ang maganda at maingat na inayos na duplex sa hardin na ito ay nag-aalok ng isang bihirang pagkakataon na tamasahin ang pribadong pamumuhay sa labas sa mga buwan ng tag-init. Sumasaklaw ito sa antas ng hardin at parlor, pinagsasama ang mga tradisyunal na sukat ng townhouse sa modernong kaginhawaan, natural na liwanag, at isang tahimik na pribadong kanlungan sa hardin.
Ang antas ng hardin ang nagsisilbing puso ng tahanan, maingat na dinisenyo para sa parehong pang-araw-araw na pamumuhay at pagdiriwang. Dito matatagpuan ang isang mal spacious na kusina, dining area, at living room, pati na rin ang isang powder room, laundry sa unit, at isang maginhawang malamig na silid para sa karagdagang imbakan. Ang living space ay direktang bumubukas sa isang kamangha-manghang pribadong hardin, na lumilikha ng walang putol na karanasan sa loob–labas na perpekto para sa umagang kape, hapunan sa gabi, o tahimik na mga sandali sa paligid ng mga halamang lunti.
Sa itaas, ang antas ng parlor ay nag-aalok ng mas pribado at relax na atmospera. Ang pangunahing silid-tulugan ay nakaharap sa hilaga sa ibabaw ng hardin, nag-aalok ng mapayapang tanawin at pambihirang katahimikan. Isang buong palikuran at isang malawak na pangalawang living room ang kumukumpleto sa antas, kasalukuyang inayos bilang isang komportableng media at library lounge. Sa kanyang timog na pagkakalantad, ang silid na ito ay nakikinabang sa napakalaking natural na liwanag sa buong araw, na ginagawang akit na espasyo para magbasa, magpahinga, o tumanggap ng mga bisita.
Ang buong tahanan ay maingat na inayos at maganda ang muwebles, na lumilikha ng isang mainit, pinong tahanan na tila parehong mataas at nakakaengganyo.
Magagamit ng kumpleto at muwebles para sa isang tatlong buwan na termino mula Hunyo 1 hanggang Agosto 31, ito ay isang bihirang pagkakataon upang tamasahin ang pamumuhay sa townhouse na may pribadong espasyo sa labas sa pinakamagagandang buwan ng taon.
A Rare Summer Garden Duplex | Fully Furnished | June 1 – August 31
Tucked within a charming townhouse, this beautifully renovated and thoughtfully furnished garden duplex offers a rare opportunity to enjoy private outdoor living for the summer months. Spanning the garden and parlor levels, the home blends classic townhouse proportions with modern comfort, natural light, and a tranquil private garden retreat.
The garden level serves as the heart of the home, thoughtfully designed for both daily living and entertaining. Here you will find a spacious kitchen, dining area, and living room, along with a powder room, in-unit laundry, and a convenient cold room for additional storage. The living space opens directly to an incredible private garden, creating a seamless indoor–outdoor experience perfect for morning coffee, evening dinners, or quiet moments surrounded by greenery.
Upstairs, the parlor level offers a more private and relaxed atmosphere. The primary bedroom faces north over the garden, providing peaceful views and exceptional quiet. A full bathroom and an expansive secondary living room complete the level, currently arranged as a comfortable media and library lounge. With its southern exposure, this room enjoys tremendous natural light throughout the day, making it an inviting space to read, unwind, or host guests.
The entire residence has been carefully renovated and beautifully furnished, creating a warm, refined home that feels both elevated and welcoming.
Available fully furnished for a three-month term from June 1 through August 31, this is a rare chance to enjoy townhouse living with private outdoor space during the best months of the year.
This information is not verified for authenticity or accuracy and is not guaranteed and may not reflect all real estate activity in the market. © 2026 The Real Estate Board of New York, Inc., All rights reserved.






