| ID # | 967788 |
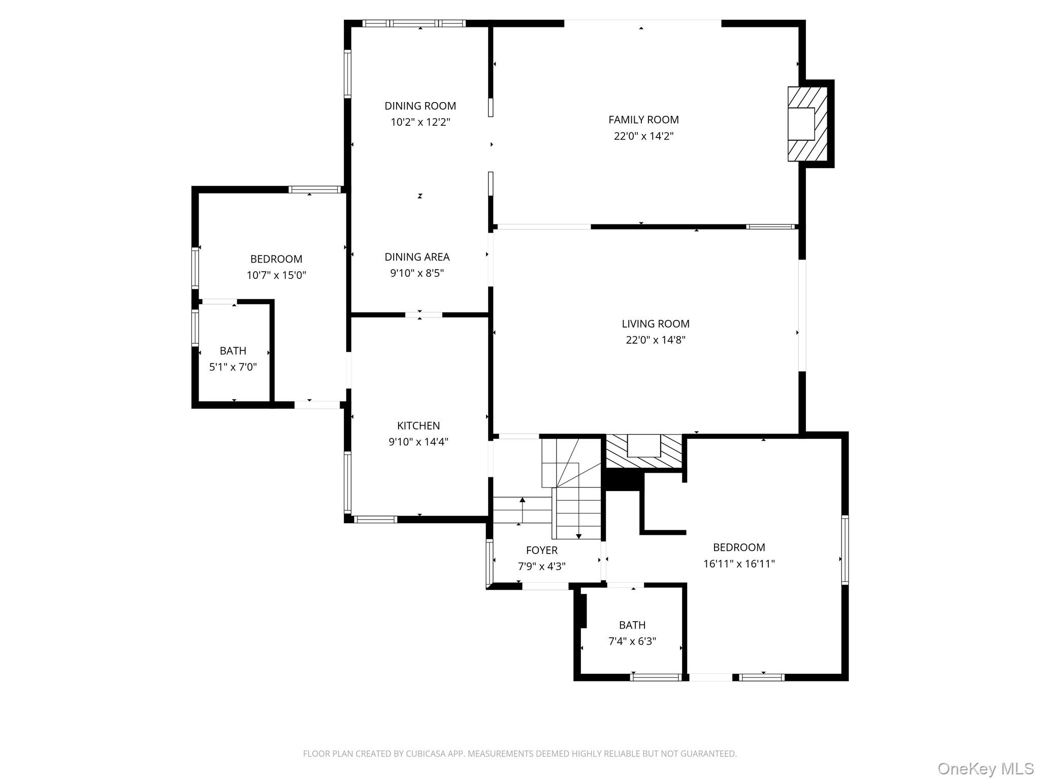
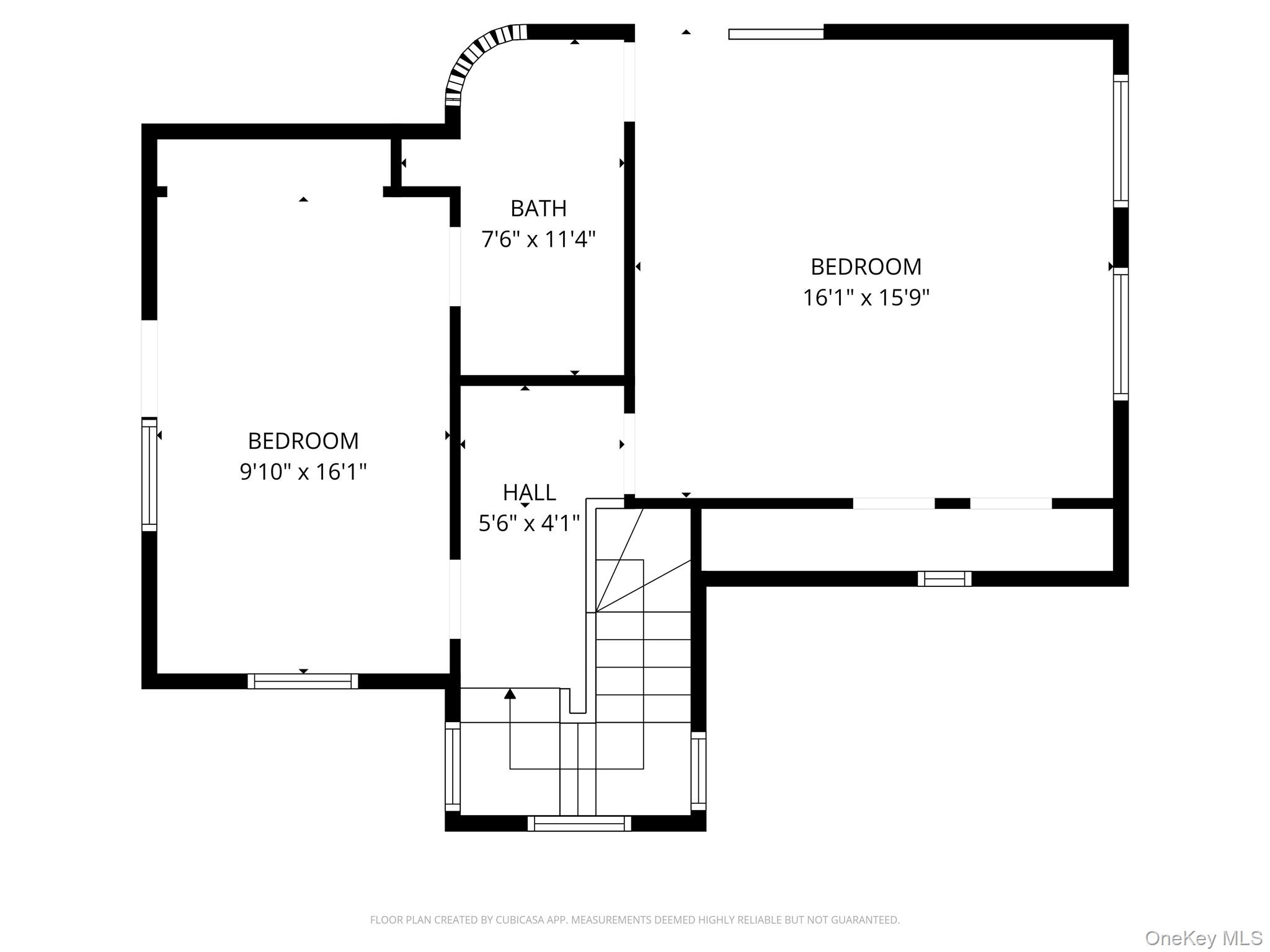
| Impormasyon | 4 kuwarto, 3 banyo, garahe, aircon, sukat ng lupa: 0.21 akre, Loob sq.ft.: 2638 ft2, 245m2 DOM: 0 araw |
| Taon ng Konstruksyon | 1935 |
| Buwis (taunan) | $23,500 |
| Aircon | sentral na aircon |
| Basement | kompletong basement |
![]() |
Espesyal ng kontratista na may pambihirang potensyal. Ang natatanging kontemporaryong disenyo na inspirasyon ng Frank Lloyd Wright, na ginaya mula sa kilalang Block House at itinayo noong 1935, ay handang ibalik sa kanyang arkitektural na kaluwalhatian. Ang loob nito ay ganap na na-demolish, na lumilikha ng isang pambihirang pagkakataon para sa isang mapanlikhang mamimili, arkitekto, o kontratista upang muling imahinahin at ipatayo ang isang natatanging tahanan sa isang kahanga-hangang kapaligiran.
Ang orihinal na disenyo ay nagtatampok ng 4 na silid-tulugan at 3 ganap na banyo, kasama ang tatlong silid-tulugan na may sariling banyo na may pribadong terensya, na nagbibigay-diin sa privacy at buhay sa loob-labas. Isang dramatikong silid-pamilya na may cathedral ceiling, napakalaking fireplace, at balcony/librarium ang kung saan nakatayo ang pangunahing antas, na pinatibay ng isang pangalawang fireplace at isang staggered na layout na lumilikha ng dynamic na mga espasyo sa pamumuhay at kapansin-pansing mga linya ng arkitektura. Ang antas ng basement ay nag-aalok ng karagdagang espasyo para sa libangan, studio, o pagpapalawak.
Nakatayo sa isang tahimik na dead-end na kalye sa tabi ng Hunts Woods Park Preserve, ang ari-arian ay may kahanga-hangang tanawin ng kagubatan at direktang access sa kalikasan. Ang isang deck ay nakatingin sa nakapaligid na tanawin, habang ang kapaligiran ay nagbibigay ng natatanging privacy na ilang sandali mula sa buhay sa nayon. Maglakad patungo sa mga tindahan ng Bronxville Village at sa Metro-North (1.1 milya) para sa madaling pag-commute patungo sa Manhattan.
Karagdagang mga tampok ay kinabibilangan ng 2-car na nakalakip na garahe at isang pambihirang mid-century na disenyo na inilarawan bilang “talagang hindi nasusunog” na konstruksyon.
Dalhin ang iyong kontratista at imahinasyon—ito ay isang blangkong canvas upang lumikha ng pangarap na tahanan sa isa sa mga pinaka-hinahangad na lokasyon malapit sa Bronxville Village.
Cash buyers lamang.
Contractor special with extraordinary potential. This unique Frank Lloyd Wright–inspired staggered contemporary, modeled after the iconic Block House and built in 1935, is ready to be restored to its architectural glory. The interior has been fully demoed, creating a rare opportunity for a visionary buyer, architect, or contractor to reimagine and rebuild a distinctive home in an exceptional setting.
The original design features 4 bedrooms and 3 full baths, including three en-suite bedrooms with private terraces, emphasizing privacy and indoor–outdoor living. A dramatic family room with a cathedral ceiling, massive hearth fireplace, and balcony/librarium anchors the main level, complemented by a second fireplace and a staggered layout that creates dynamic living spaces and striking architectural lines. The basement level offers additional space for recreation, studio, or expansion.
Set on a quiet dead-end street bordering the Hunts Woods Park Preserve, the property enjoys magnificent wooded views and direct access to nature. A deck overlooks the surrounding landscape, while the setting provides remarkable privacy just moments from village life. Walk to Bronxville Village shops and Metro-North (1.1 mile) for an easy commute to Manhattan.
Additional features include a 2-car attached garage and a rare mid-century design concept described as “totally fireproof” construction.
Bring your contractor and imagination—this is a blank canvas to create a dream home in one of the most desirable locations near Bronxville Village.
Cash buyers only.
This information is not verified for authenticity or accuracy and is not guaranteed and may not reflect all real estate activity in the market. Listing courtesy of Julia B Fee Sothebys Int. Rlty © 2026







