| MLS # | 971940 |
| Taon ng Konstruksyon | 1960 |
| Buwis (taunan) | $33,061 |
| Aircon | sentral na aircon |
| Tren (LIRR) | 1.2 milya tungong "Floral Park" |
| 1.2 milya tungong "Bellerose" | |
![]() |
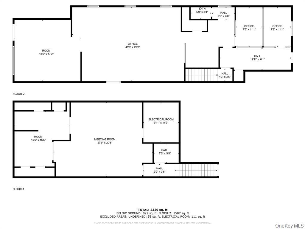
Pangunahing komersyal na pagkakataon sa 1717 Hempstead Turnpike, Elmont, NY, na matatagpuan sa isa sa mga pinaka-abala na koridor ng Nassau County na may higit sa 40,000 sasakyan na dumadaan araw-araw, na nagbibigay ng pambihirang exposure para sa anumang negosyo. Ang ari-arian ay nag-aalok ng 2,349 square feet ng espasyo kasama ang eksklusibong access sa isang pribadong paradahan para sa 14 na sasakyan, na nagbibigay ng kaginhawaan para sa parehong mga customer at empleyado.
Matatagpuan nang direkta sa tapat ng mga pangunahing pambansang retailer kabilang ang Home Depot, Target, Chipotle, at Applebee’s, ang site na ito ay nakikinabang mula sa matatag na daloy ng mga mamimili at itinatag na presensya ng pambansang tatak. Sa paglalakbay patungong kanluran, ang gusali ay may higit sa dalawang bloke ng malinaw na visibility, na lumilikha ng makapangyarihang bentahe sa marketing at isang tunay na mataas na epekto na pagkakataon para sa signage. Ang signage ay maaaring ilagay sa magkabilang panig ng gusali, na nagpapahintulot ng exposure sa trapiko na bumibiyahe patimog at hilaga sa Hempstead Turnpike.
Ang ari-arian na ito ay may potensyal na magsilbing hinaharap na flagship na lokasyon para sa isang pambansang food franchise, retail brand, o propesyonal na negosyo na gustong sulitin ang mabigat na trapiko sa lugar at malakas na retail synergy.
Ang kasalukuyang Certificate of Occupancy ay para sa paggamit ng opisina, na may HT-E / HB zoning, na nagbibigay-daan sa maraming pinahihintulutang paggamit kabilang ang propesyonal na opisina, retail trade, bangko, restaurant, at recreational use.
Ang may-ari ay naghahanap ng isang long-term na triple net (NNN) na nangangalaga, na nag-aalok ang landlord na sakupin ang 50% ng mga buwis sa ari-arian, na lumilikha ng kaakit-akit na estruktura ng pagpapaupa para sa tamang operator.
Huwag palampasin ang pagkakataon na makuha ang isang lokasyon na may mataas na visibility sa isa sa mga pinaka-aktibong komersyal na koridor ng Nassau County.
Prime commercial opportunity at 1717 Hempstead Turnpike, Elmont, NY, positioned on one of Nassau County’s busiest corridors with over 40,000 vehicles passing daily, delivering exceptional exposure for any business. The property offers 2,349 square feet of space along with exclusive access to a 14-car private parking lot, providing convenience for both customers and employees.
Located directly across the street from major national retailers including Home Depot, Target, Chipotle, and Applebee’s, this site benefits from strong consumer traffic and established national brand presence. Traveling westbound, the building enjoys over two blocks of clear visibility, creating a powerful marketing advantage and a true high-impact signage opportunity. Signage can be installed on both sides of the building, allowing exposure to traffic traveling east and west along Hempstead Turnpike.
This property has the potential to serve as a future flagship location for a national food franchise, retail brand, or professional business looking to capitalize on the area’s heavy traffic and strong retail synergy.
The current Certificate of Occupancy is for office use, with HT-E / HB zoning, allowing multiple permitted uses including professional office, retail trade, bank, restaurant, and recreational use.
Ownership is seeking a long-term triple net (NNN) tenant, with the landlord offering to cover 50% of the property taxes, creating an attractive leasing structure for the right operator.
Don’t miss the opportunity to secure a high-visibility location in one of Nassau County’s most active commercial corridors.
This information is not verified for authenticity or accuracy and is not guaranteed and may not reflect all real estate activity in the market. Listing courtesy of Real Broker NY LLC © 2026







