| ID # | RLS20064947 |
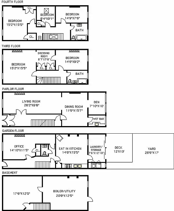
| Impormasyon | 5 kuwarto, Loob sq.ft.: 3108 ft2, 289m2, 2 na Unit sa gusali, May 3 na palapag ang gusali DOM: 128 araw |
| Taon ng Konstruksyon | 1899 |
| Buwis (taunan) | $5,400 |
| Subway | 2 minuto tungong C |
| 5 minuto tungong B, D | |
| 6 minuto tungong 1 | |
| 7 minuto tungong A | |
![]() |
Bihirang Oportunidad sa Hamilton Heights!
Maranasan ang pinong pamumuhay sa townhouse na may pambihirang potensyal para sa pangmatagalang pagtaas ng halaga. Ang klasikal na eleganteng tahanang ito ay nakatayo sa isang tahimik, puno ng mga puno na kalye sa puso ng makasaysayang Hamilton Heights, na pinaghalo ang walang panahon na alindog ng prewar sa mga modernong upgrade.
Mga Tampok ng Ari-arian
Limang Silid-Tulugan – Maluwag at maaaring umangkop sa iyong mga pangangailangan sa pamumuhay.
Na-renovate na mga Banyo – Dinisenyo gamit ang mga premium na fixtures at kontemporaryong finishes.
Nakakamanghang mga Loob – Malalaki ang mga bintana, mistulang 11-12 talampakan ang taas ng kisame, at kumikislap na hardwood na sahig ay lumikha ng isang maaraw at nakakaanyayang atmospera.
Napanatili ang mga Orihinal na Detalye – Eleganteng crown moldings, dekoratibong mga fireplace, at mga wooden shutters ang nagbibigay-diin sa makasaysayang karakter ng tahanan.
Pribadong Hardin – Isang mapayapang panlabas na pahingahan na perpekto para sa pagtanggap ng bisita o pagpapahinga.
Modernong Kaginhawaan – Kabilang ang washer/dryer sa yunit.
Ang townhouse na ito para sa dalawang pamilya ay nag-aalok ng pambihirang pagbabago — madaling maimagine bilang isang tahanan para sa isang pamilya o mapanatili bilang multi-unit na ari-arian para sa karagdagang kakayahang umangkop.
Matatagpuan sa ilang hakbang mula sa mga linya ng subway C at 1, ang tirahan na ito ay pinagsasama ang makasaysayang alindog sa modernong kaginhawaan ng lungsod. Huwag palampasin ang pagkakataong magkaroon ng natatanging townhouse sa Hamilton Heights na ito.
Read the English version or choose another language
This information is not verified for authenticity or accuracy and is not guaranteed and may not reflect all real estate activity in the market. © 2026 The Real Estate Board of New York, Inc., All rights reserved.







